Längen unterhalb des Mindestlänge werden im Rahmen der Optimierung zu verarbeitbaren Kombinationen angepasst.
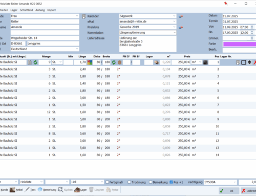
Die vorliegende Beispiel-Holzliste umfasst mehrere Längen unterhalb der verarbeitbaren Mindestlänge von 3m und ist daher in ihrer aktuellen Form nicht einschnittfähig.
Durch Auswahl des Symbols mit dem Puzzleteil wird das Fenster zur Längenoptimierung geöffnet.

Vor Start der Optimierung können sowohl Einzel-, Fixlängen als auch die Vorschau eingerichtet werden. Die Stieligkeit ist sowohl oben rechts im Fenster einstellbar – abhängig vom gewählten Längenprogramm im dropdown links davon – als auch separat als Parameter bei der Definition von Fixlängen hinterlegt. Die Stieligkeit definiert die Anzahl der Kanthölzer, die pro Rundholzstamm erzeugt werden sollen.Die Vorschau bestimmt, wie weit die Optimierung bei der Einhaltung der Stieligkeit gehen soll und wie viel Zeit ihr dafür zur Verfügung steht.. Die Längenoptimierung liefert schon bereits im unteren Fensterbereich Vorschlagskombinationen, wobei farblich hervorgehobene (grüne) Varianten die höchste Effizienz aufweisen. Durch Ausführen von Start wird die Längenoptimierung initiiert. Der Prozess kann durch Auswahl einer vorgeschlagenen Variante oder Betätigen von Weiter beschleunigt bzw. direkt fortgesetzt werden.
Die Einzellängen unter 3 Metern werden durch die Längenoptimierung automatisch zu Rundholzlängen ab 3 Metern zusammengeführt. Dabei erfolgt die Kombination präzise, verschnittoptimiert und unter der Vorgabe, dass pro Stamm mehrere Kanthölzer ausgegeben werden. Darüber hinaus berücksichtigt die Optimierung die Stieligkeit, um die Entstehung überschüssiger Kanthölzer zu vermeiden. Das end Ergebniss ist eine verständliche, strukturierte, verarbeitungsfertige Liste mit höherer Materialausbeute und reduziertem Planungsaufwand.

Nach der Längenoptimierung enthält die Beispiel-Holzliste ausschließlich Positionen mit Längen oberhalb der verarbeitbaren Mindestlänge von 3 Metern und ist damit einschnittfähig.

Zur Nachverfolgung der Entstehung einer Endkombination kann über das Puzzleteil-Symbol an der jeweiligen Position ein Dokumentationsfenster aufgerufen werden. Dieses zeigt detailliert, aus welchen Einzelpositionen die Kombination gebildet wurde, einschließlich der zugehörigen Längen. Zudem besteht die Möglichkeit, die jeweilige Kombinationsposition – und damit auch die Optimierung für diese Position – vollständig zurückzusetzen.

Die Lieferliste dokumentiert detailliert die Zusammensetzung jeder Position aus den einzelnen Bauteilen. Dadurch erhält Ihr Kunde jederzeit transparente und nachvollziehbare Informationen über die Zuordnung der Teile zu den jeweiligen Positionen – klar strukturiert und vollständig nachvollziehbar.


Hinterlassen Sie einen Kommentar